Kvarteret Mården
Film
Beskrivning
Ritning
Byggblogg
Beskrivning
Inflyttning 1 september - fullbokat!
Hyreshusets centrala läge och mysiga innergård gör det attraktivt och tillgängligt för alla.
Mer information hittar du i Bofakta bladet
Samtliga lägenheter är utrustade med:
- Golvvärme
- Diskmaskin
- Tvättmaskin, torktumlare/kombimaskin
- Balkong
- Målade väggar i samtliga rum
- Kabeltv
- Helkaklade badrum
- Handdukstork
- Förråd på kallvindan
På innergården finner du:
- Cykelhus
- Pergola
- Bastu
- Inglasad relax
- Inglasat uterum
- Grillplats
- Stora lekytor
- Lekplats
- Carports
- Handikapp plats
- Laddningsplats för elbil
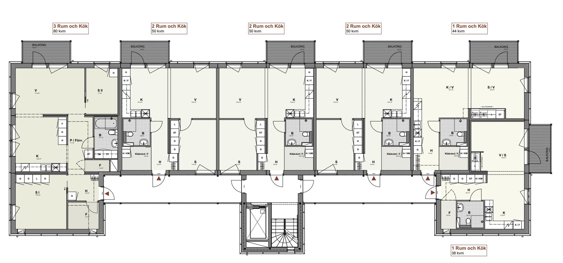
Kvarteret Mården skiss

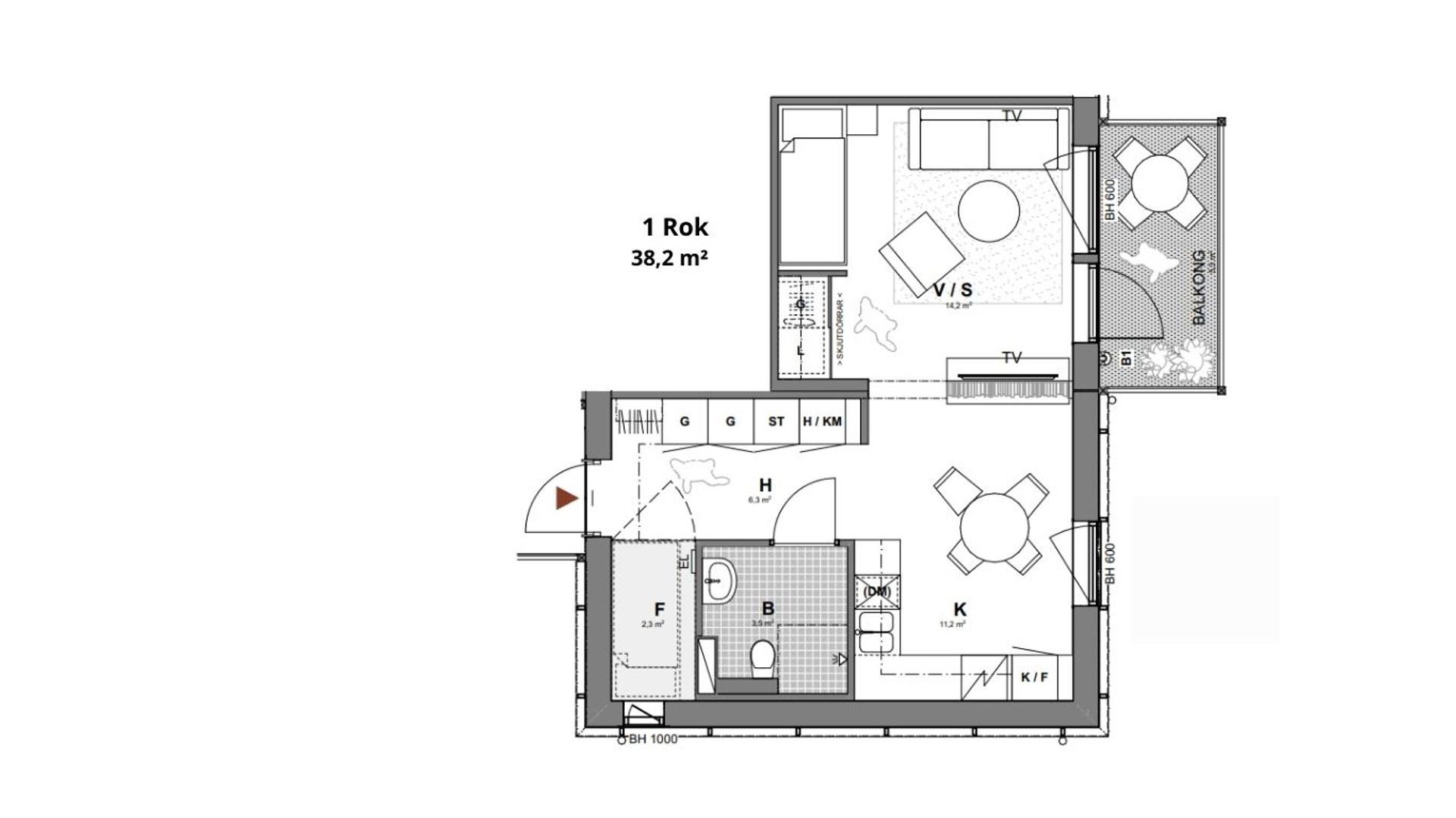
1 rum och kök, 38 m²
1 rum och kök, 44 m²
2 rum och kök, 50 m²
3 rum och kök, 80 m²

Planlösning
Planlösning
Planlösning

Byggblogg
Image gallery
Catokranen är på plats för lyfta de tunga kantbalkarna.
Här till höger kan du se när kantbalkarna lyftes på plats den 9 september 2021. Varje kantbalk väger ca 3-4 ton så det behövs en kraftig kran för att lyfta dessa så stabilt och säkert som möjligt.
Film
De sista lägenhetsmodulerna lastas av och sänks ner på plats. Vi väntar med spänning på taket som kommer i flera sektioner inom de närmsta dagarna. Sedan kommer värmen att slås på, hissar monteras och sätts på plats, plus att det är en hel del inom- och utomhus jobb, innan det slutligen blir klart för inflyttning.
